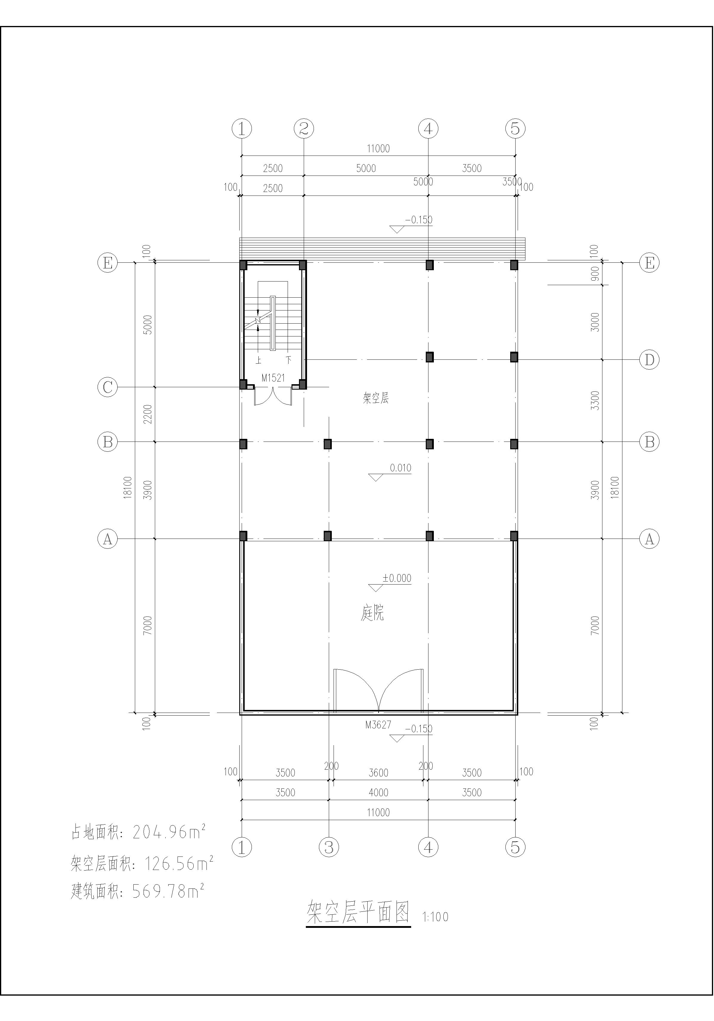
2013年龙南县零星土地出让经龙南县建筑设计院设计,我局初步审核,拟同意按此方案施工。现公布零星土地竞得人建筑方案如下:
零星土地竞得人建筑方案情况
| 序号 |
姓名 |
建设地址 |
占地面积(㎡) |
车库面积(㎡) |
建筑面积(㎡) |
层数 |
备注 |
| 1 |
廖涌宏、廖龙涛、廖文娟、廖余 |
红光住宅区4号 |
204.96 |
126.56 |
569.78 |
4 |
不含架空层 |
附:建筑方案平面图
2013年11月20日
附件: 红光住宅4_01.jpg
相关文章
关键字:

