龙南市渡江中心敬老院设施完善项目采购设施设备询价公告
根据《中华人民共和国政府采购法》《政府采购非招标采购方式管理办法》规定,为提升龙南市渡江中心敬老院服务质量,龙南市民政局拟为龙南市渡江中心敬老院采购室外消防水箱及高位水箱等设施设备。现将有关事项公告如下:
一、业主单位
龙南市民政局
二、项目名称
龙南市渡江中心敬老院设施完善项目采购设施设备
三、项目内容
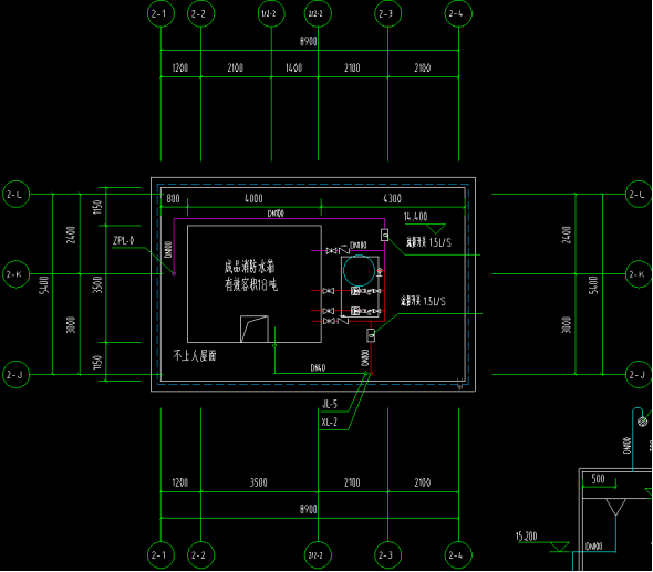
龙南市渡江中心敬老院采购室外消防水箱及高位水箱,具体内容详见附件。
四、报价人资格要求
(一)符合《中华人民共和国政府采购法》第二十二条规定的投标人资格条件;
(二)国内注册具有独立法人资格的单位;
(三)未被“信用中国”网站(www.creditchina.gov.cn)及中国政府采购网(www.ccgp.gov.cn)等渠道列入失信被执行人、重大税收违法案件当事人名单、政府采购严重违法失信行为记录名单;
(四)具备提供服务所必需的专业资质、专业技术和专业执行团队;
(五)本项目不接受联合体投标;
(六)符合法律、行政法规规定的其他条件。
五、供应商报名提交的材料
(一)报名时须提供的材料
1.满足上述供应商资格要求的相关证明材料;
2.公司主要简介(含业绩)、服务承诺;
3.法定代表人(携带身份证原件)或授权委托代理人(携带授权委托书原件、身份证原件)、法定代表人身份证复印件;
4.营业执照副本复印件;
5.报价单;
6.其他相关材料。
以上材料复印件均需加盖单位公章。
(二)提交方式
密封方式。报价文件须经报价单位盖章齐全后用信封密封,信封上注明项目名称、被询价单位全称及联系方式,信封封口处应当加盖单位公章;报名单位须对提供的材料真实性负责,若有隐瞒或弄虚作假行为的,一经发现将被取消资格。
六、询价时间和地点
(一)本项目仅接受现场报名,不接受邮寄方式报名;
(二)材料提交时间:2025年8月26日至2025年8月28日。报价为含税价格,逾期提交的报价文件不予接受;
(三)材料递交地址:龙南市仙岩大道76号龙南市民政局三楼社会福利与慈善促进股办公室;
(四)联系人及电话:徐女士,15180215776。
七、报价文件提交后原则上不得更改,但采购人有权要求供应商澄清非实质性内容。报价文件只作价格参考,不作为最终采购结果。
附件:工程量清单及图纸
龙南市民政局
2025年8月26日
附件
工程量清单
|
序号 |
项目名称 |
项目特征描述 |
计量单位 |
工程量 |
|
1 |
室外消防水箱 |
尺寸为10000mmX9000mmX3000mm(具体以实际为准);水箱主体均采用304不锈钢板材制作而成;水箱内部拉筋采用304不锈钢交错加固;配有10#槽钢底架;各管口位置及管径:根据现场确定;水箱混凝土基础由订购方提供,水箱基础定位时应注意,放置水箱顶部不得低于600mm的检修空间,周围不得低于500mm的检修空间。(含安装、调试及人工,不限于U型玻璃液位计、明杆闸阀、18目钢丝网防虫网罩、泄水阀门、不锈钢爬梯等,具体详见图纸。) |
个 |
1 |
|
2 |
高位水箱 |
采用成品水箱;水箱尺寸为4000mmx3500mmx2000mm;消防水箱池及配件安装,参照16S211标准设计图集;屋面消火栓增压设备应设防雨设施;水箱的人孔以及进出水管上的阀门等应采取锁具或间门箱等保护措施;当水位低于常水位50-100mm时应报警,消防泵启动后低于正常水位时报警应停止;最低报警水位:16.750m,最高报警水位:16.850m。(含安装、调试及人工,不限于流量开关、止回阀、消火栓稳压设备、水泵二台、立式隔膜式气压罐、18目钢丝网防虫网罩、液位信号装置、电感式液位计、DN25玻璃水位标尺、防止旋流器等,具体详见图纸。) |
个 |
1 |
室外消防水箱


高位水箱




相关文章

